隨著各類產品生產工藝技術、產品性能的不斷研究開發、升級和各種使用要求,工業裝修對空氣潔凈度及污染物的控制要求不斷變化、提高,尤其是5G熱潮襲來、半導體集成電路的高速發展是潔凈度等級的擴大和控制微粒粒徑日益嚴格的重要標志。
千級凈化車間的應用較為廣泛,在醫院手術室、機械電子等行業的裝修設計中潔常有使用。千級潔凈室指的是微塵數量被控制在每立方米1000個以內,同時為了防止潔凈空間受外界污染,在室內壓差上也有所要求,通常要求內部壓力(靜壓)>外部壓力(靜壓);潔凈度要求高的空間壓力>潔凈度要求低的空間壓力;潔凈室門的朝向應開向潔凈度級別高的房間。
千級凈化車間裝修設計標準和一般做法,合景凈化工程公司整理了下文:

一、工程概括
\r\n 半導體凈化車間設計范圍包括:裝修方案(圍護、地面防水保溫處理),暖通方案(空調設備、風管、水管等),特氣供應方案(特氣柜含保險控制、房間氣體檢測、EP級管道及BA及管道。供應氣管尾氣處理),壓縮空氣方案,廢氣處理方案(儀器設備POU處理、房間排風廢氣處理)電氣方案(空調設備動力配電等),弱點工程,集成控制智能平臺,純水方案(冷卻水、去離子水、超純水、水管等),廢氣處理。
二、結構圍護工程
\r\n 墻板及吊頂:本工程隔墻采用企業口型機制玻鎂巖棉夾芯板0.426,玻鎂巖棉彩鋼板符合潔凈廠房二級消防要求,玻鎂巖棉彩鋼夾芯板具有1000℃的耐火性能,耐火等級達到A級。巖棉密度:≥100kg/m3;導熱系數:≤0.046w/m.k;燃燒性能:A級(不燃)。耐火極限為30-120分鐘。廣泛應用于食品、電子、醫藥、飲料、生物研究等行業。
\r\n 地板:本宮車間內地面采用防靜電型PVC地板,其中千級和百級車間采用防靜電型加高鋼板,其它為普通型PVC地板。PVC地板是當今世界上非常流行的一種新型輕體地面裝飾材料,也稱為“輕體地材”使用非常廣泛。

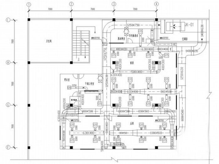
三、暖通工程
\r\n 設備:空調制冷負荷:經統計計算,總冷負荷約500kw。采用恒溫恒濕潔凈空調,夏季采用磁懸浮水冷機組,冬季采用廠區鍋爐熱水供熱。
\r\n 風管:風管采用共板法蘭風管。
\r\n 水管:空調水管采用無縫鋼管。水泵采用星 三角降壓啟動。
四、特種氣體工程
\r\n 工藝氣體種類多,純度高,并且易燃易爆有毒。安全問題突出,為保證系統的安全和穩定可靠,建議采用進口成熟產品。
\r\n 英文mocvd生長使用的源是易燃、易爆、毒性很大的物質,并且要生長多組分,大面積,薄層和超薄層異質材料,因此在mocvd系統的設計思想上,通常要考慮系統密封性要好,流量、溫度控制要精確,組分變換要迅速,系統要緊湊等。核心工作是氣體輸運系統和尾氣處理系統。
五、空壓機工程
\r\n 螺桿式空壓機組主要有以下系統組成:空氣流程系統,潤滑油流程系統、冷卻系統、安全保護系統、控制系統及電氣線路。螺桿式空壓機組要壓縮機、電動機、空氣濾清器、進氣閥、油氣桶、空氣冷卻器、潤滑油冷卻器壓力開關、單向閥、儲氣罐、壓力表、自動排水器、安全閥等設備部件。另外在空壓機系統中大多配置冷干機和空氣干燥器。
六、廢氣工程
\r\n 合景凈化工程公司認為,由于半導體工藝對操作是清潔要求極高,通常使用風機抽取工藝過程中揮發的各類廢氣,因此半導體行業廢氣排放有排氣量大、排放濃度小的特點。廢氣排放也以揮發為主。表中給出了不同生產工藝排放的廢氣組成。這些廢氣排放主要可以分為四類:酸性氣體、堿性氣體、有機廢氣和有毒氣體。

對酸性氣體、堿性氣體的處理一般采用濕式洗滌塔技術。
對于有機廢氣采用吸附、焚燒或兩者相結合的處理方法。因為半導體工藝工程中有機廢氣具有排放流量大(通常大于11039m3/小時)和濃度低(通常小于25ppmv)的特點,使用其他的處理技術難以達到令人滿意的處理效率。沸石濃度縮轉輪后再吸附或焚燒。
七、電氣工程
空調動力電工程;統計總用量電量約830kw,空調用電約330kw。
動力(鍍鋅線槽)沿墻體及天花敷設,再分支車間及設備電箱,安裝在樓板下。主電纜采用YJV型號。
八、弱點系統工程
1:高清視頻監控 系統采用1200w網絡監控攝像機,通過千兆交換組網在機房中心進行集中存儲,系統設計7*24小時間斷運行,實現1080p存儲1個月以上,管理人員可通過電腦進行監控查看,錄像回放等操作。
2:門禁管理系統 門禁系統已成為安防系統極其重要的組成部分,門禁系統將監控被動防范的方式進行了主動防范補充。通過網絡一體式門禁管理機,配合門禁專用電源。電磁鎖可將主要出入口設置為授權式管理,避免了與車架無關人員的頻繁出入。
九、只能平臺
\r\n 潔凈系統中的風量控制采用文丘李閥門,實時監控流量計狀態,可在先診斷。并可以維持房間壓力、溫度、濕度的平穩可靠。中控室中把空調、特氣、純水、監控、房間溫濕度等參數集成管理、顯示、儲存,并對數據進行打印輸出及溯源查找。并經設備輸出在參觀通道播放,方便參觀。
十、純水工程
1:設備產水能力:
2:RO系統:一級RO反滲透產水量≥8m3/h(水溫保證在25℃時);
\r\n 二級RO反滲透產水量≥6m3/h(水溫保證在25℃時);
3:EDI系統:EDI產量水量≥5m3/h(水溫在25℃時)
4:終端拋光混床產水能力為:≥5m3/h(水溫保證在25℃時)
5:設備產水水質指標:
\r\n 終端拋光混床產水能力為:≥18.00MΩ.com(水溫保證在25℃時,測點在拋光混床出口3米內,95%時間)
其他技術指標參照我國的電子級水電技術指標(GB11446.1-1977)EW-1
由于設備用水的級別各不相同,可以在本設計流程中的某段引出合適的使用點即可。對于超純水必須采用UPVC材質(因金屬管道會析出離子),特別對于園晶的生產,超純水會對額定的離子限值嚴格,所以采用進口的UPVC純水管道對產品質量有保證。
十一、廢氣處理工程
半導體制造及封裝測試的各個工藝步驟都有大量的廢水產生,主要以酸堿廢水、含氟廢水、有機廢水為主。

十二、千級凈化車間的裝修設計標準
1. 千級凈化車間的建筑通常劃分為土建結構和裝配式兩種,其中裝配式更為普遍,主要包括由初級、中級、高級空氣過濾器構成的空調送回風系統、排風系統及其他配套系統。
2. 千級凈化車間的室內空氣參數設置要求:
① 溫濕度要求:溫度一般為24+2℃,相對濕度為55+5%。
② 新風量:非單向流潔凈室總送風量的10-30%;補償室內排風和保持室內正壓值所需的新鮮空氣量;保證室內每人每小時的新鮮空氣量≥40m3/h。
③ 送風量:要滿足無塵車間內的潔凈度及熱濕平衡。
十三、千級凈化車間的一般做法

關于千級凈化車間的一般做法,合景凈化工程公司將以電路板千級凈化車間的三種設計方案來比較分析。此處案例為柔性電路板EPC總承包項目中的一個典型工藝房間,溫濕度要求在(21±2)℃,濕度控制在(55±10)%。
1. 方案一:AHU(空調機組)+HEPA(高效送風口)
2. 方案二:MAU(新風機組)+RAU(循環機組)+HEPA(高效送風口)
3. 方案三:AHU(空調機組)+FFU(風機過濾單元)
對比三種方案發現三種方案造價差異不大,但方案三由于使用了大量循環風且只經過一次高效過濾,在運行能耗上相比方案一和方案二消耗更少。
工程視頻案例
PURIFICATION CASE
新能源電池案例
PURIFICATION CASE
電子光學案例
PURIFICATION CASE
生物制藥案例
PURIFICATION CASE
醫療器械案例
PURIFICATION CASE
食品日化案例
PURIFICATION CASE
主站蜘蛛池模板: 绵竹市| 苏尼特右旗| 靖安县| 买车| 东丰县| 平泉县| 阿图什市| 吐鲁番市| 西城区| 丽水市| 和田县| 巩留县| 巴林右旗| 乐安县| 菏泽市| 芦山县| 二手房| 历史| 江北区| 攀枝花市| 金山区| 吉安县| 建宁县| 伊金霍洛旗| 金寨县| 彭阳县| 葫芦岛市| 乌拉特中旗| 遵义市| 东至县| 义乌市| 紫金县| 贵溪市| 蓝山县| 沂南县| 大埔区| 军事| 无锡市| 元朗区| 理塘县| 南平市|